Imagine 99

150 mp birouri de închiriat – 4 camere, Calea Dumbravii, 12 €/mp ALL INCLUSIVE

Aceasta proprietate a fost deja inchiriata! Pentru oferte similare contactati agentul
ID: P255916 Sibiu, Calea Dumbravii 8
12€/mp
Descriere
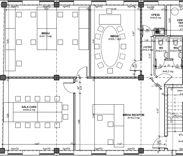
Închiriem spatiu de birouri cu o suprafață utilă de aproximativ 150 mp, situată pe Calea Dumbravii – zonă ultracentrală Sibiu.
- Preț chirie: 12 € / mp / lună (include chiria + service charge + cafea gratuită)

Compartimentare:
- 4 birouri confortabile și luminoase (diferite suprafețe)
- Hol de acces și spații de circulație
- Acces la grupurile sanitare centrale (jumătate din băi)
- Oficiu / bucătărie (jumătate inclusă)

Ideal pentru companii mici, birouri administrative, consultanță, educație, agenții sau cabinete profesionale care doresc un spațiu separat și liniștit la etajul superior.Avantaje:
- Poziționare excelentă în clădire
- Locație ultracentrală pe Calea Dumbravii
- Cafea gratuită inclusă în preț
- Toate costurile de întreținere incluse
- Mediu profesional și calm

Disponibil: incepand cu 15 mai
Pentru vizionare sau informații suplimentare, contactați agenția noastră.
Caracteristici
  • ID:P255916
  • Nr. camere:4
  • S. utila:150.00 mp
  • Clasificare:B
  • Etaj:Etaj 3
  • Nr. bai:2
  • Nr. parcari:3
  • Structura rezistenta:Beton
  • Regim inaltime:P+3
  • Garantie:O garantie
Specificatii
Curent
Apa
Canalizare
Gaz
Acces internet
Fibra optica
Centrala imobil
Calorifere
Aer conditionat
Vopsea lavabila
Faianta
Parchet
Gresie
Mocheta
Ferestre Termopan
Aplice
Parcare proprie
Complet mobilat
Curte comuna
Acces securizat parcare
Administrare
Curatenie
Localizare
Noblea Imobiliare
Esti interesat de aceasta proprietate ?