Imagine 99

Etaj 2 integral birouri – 293,5 mp, Calea Dumbravii Sibiu, 12 €/mp ALL INCLUSIVE

ID: P255911 Sibiu, Calea Dumbravii 9
12€/mp
Descriere
Se inchiriaza întregul etaj dintr-o clădire de birouri situată pe Calea Dumbravii, una dintre cele mai căutate și ultracentrale zone din Sibiu.
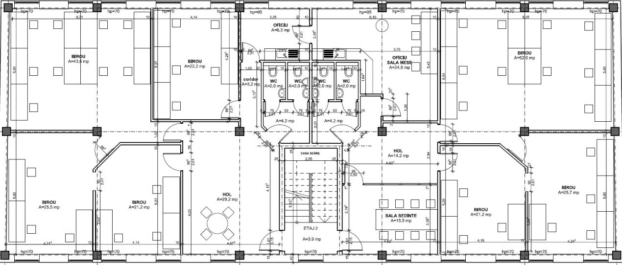
Suprafață utilă totală: 293,5 mp
Preț chirie: 12 € / mp / lună (chiria + service charge + cafea asigurată gratuit pentru chiriași)

Compartimentare și facilități:
- 7 birouri spațioase cu suprafețe cuprinse între 21 mp și 52 mp
- 2 săli de ședințe / meeting (una de 15,5 mp și una de 24,8 mp)
- Holuri generoase
- Grupuri sanitare moderne (4 WC-uri)
- Oficiu / bucătărie complet utilat
- Spații de depozitare și coridoare de acces
- Lumină naturală excelentă în majoritatea încăperilor
- Acces facil prin casa scării centrală

Spațiul este ideal pentru companii medii sau mari, sediu de firmă, birouri administrative, IT, servicii profesionale, agenții sau centre de training. Poate fi folosit atât compartimentat, cât și în regim open-space parțial.
Avantaje principale:

Locație ultracentrală pe Calea Dumbravii – acces excelent cu mașina și transportul public
Cafea gratuită inclusă în chirie (un beneficiu rar și foarte apreciat de angajați)
Toate service charge-urile (întreținere, curățenie comună etc.) incluse în prețul de 12 €/mp
Flexibilitate la amenajare
Mediu profesional și liniștit

Disponibil: incepand cu data de 15 mai
Contract pe teremn lung
Pentru vizionare, detalii suplimentare sau negociere, contactați-ne.
Caracteristici
  • ID:P255911
  • Nr. camere:9
  • S. utila:283.00 mp
  • Comp.:Compartimentat
  • Clasificare:B
  • Etaj:Etaj 2
  • Nr. bai:4
  • Nr. parcari:3
  • Structura rezistenta:Beton
  • Regim inaltime:P+3
  • Garantie:O chirie
Specificatii
Curent
Apa
Canalizare
Gaz
Acces internet
Fibra optica
Centrala imobil
Calorifere
Aer conditionat
Vopsea lavabila
Faianta
Parchet
Gresie
Mocheta
Ferestre Termopan
Aplice
Parcare proprie
Complet mobilat
Curte comuna
Acces securizat parcare
Administrare
Curatenie
Supraveghere video
Ingrijire spatii verzi
Curatenie parcare
Localizare
Noblea Imobiliare
Esti interesat de aceasta proprietate ?